Berflobeek Anthoniusstraat - Rudolfstraat
De Berflobeek in Hengelo wordt stap voor stap opgeknapt. Het deel van de beek tussen de Anthoniusstraat en de Rudolfstraat heeft groot onderhoud nodig. Kades zijn verzwakt en oevers zijn deels weggespoeld. De beek is hier na verloop van tijd te smal geworden. Daarom maken we de beek breder. En we verstevigen de oevers met betonwanden, omdat de ruimte tussen de huizen beperkt is.
We gaan met ingang van 2026 op meer plekken aan de slag met de Berflobeek. Meer informatie hierover vind je op Beken Hengelo - Vechtstromen
De werkzaamheden
We starten met het opschonen en opruimen van de bestaande situatie rondom de beek. Zo maken we ruimte voor nieuwe betonnen keerwanden die de beek aan beide kanten begrenzen. Daarna leggen we een betonnen ondergrond aan. Hierop worden de nieuwe wanden geplaatst. Zo ontstaat een bredere beek die door een nieuwe betonnen constructie stroomt.
Als deze werkzaamheden zijn afgerond, herstellen we de aangrenzende opritten. We plaatsen nieuwe hekwerken en schuttingen. Daarnaast richten we op verschillende plekken natte zones in, waar water kan blijven staan en waar nieuwe beplanting komt.
Berflobeek Anthoniusstraat - Rudolfstraat
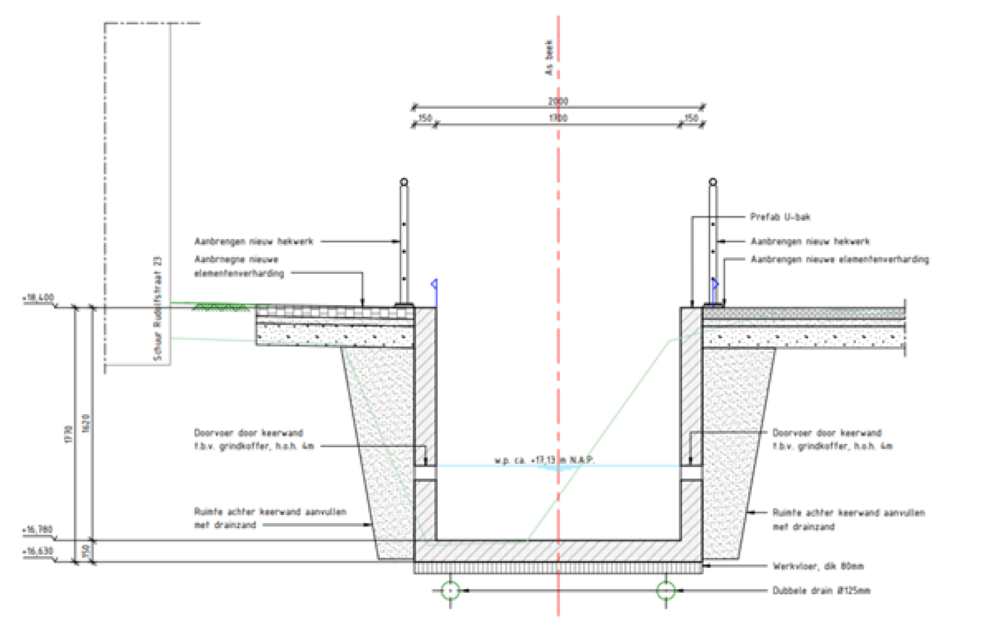
Nieuwe situatie
In de schetsen die je hiernaast ziet, wordt een dwarsdoorsnede van de nieuwe situatie weergegeven.
In de bovenste schets is een stevige betonnen keerwand getekend met aan weerszijden een hekwerk.
De schets daaronder is een dwarsdoorsnede van de beek met aan de rechterzijde een natte zone. Er staat ongeveer 35 centimeter water in de beek. Het water blijft aan de linkerzijde van de beplanting. Bij hoogwater kan de hele beek zich vullen en staan de planten tijdelijk onder water.
Project updates
Nieuws
Berflobeek Anthoniusstraat - Rudolfstraat
Projectinformatie
Zelf aan de slag
Waterschap Vechtstromen en de gemeente Hengelo vinden het belangrijk om wateroverlast in de toekomst te beperken en nemen daarom maatregelen in de openbare ruimte. Maar ook inwoners kunnen zelf wat doen op het eigen terrein, om ervoor te zorgen dat extreme regenbuien voor minder overlast zorgen. Dat kan bijvoorbeeld door de regenpijp af te koppelen of de tuin te vergroenen.
Kijk voor tips en inspiratie op www.groenblauwtwente.nl




